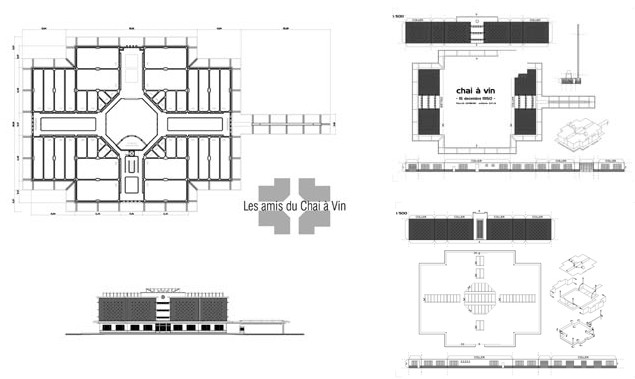
[Dossier] Chai relais de Rouen (ou chai à vins)
[màj du 03/02/09] >> Rajout de photos anciennes tout en bas, ainsi que des nouveaux liens vers les collègues ayant aussi fait le chai 🙂
[màj du 03/03/09] >> Rajout de photos anciennes et refonte complète du post.
Un gros dossier, pour un lieu qui le mérite bien: le chai de Rouen.
1
2
3
4
5
6
7
8
9
10
11
13
14
15
16
17
18
19
20
21
22
23
24
25
27
29
30
33
34
35
36
38
39
40
41
44
45
47
48
49
51
52
53
56
57
58
59
62
63
64
66
68
70
71
73
75
76
77
79
80
81
82
85
86
87
88
89
90
91
92
93
94
96
98
99
100
102
104
105
106
109
110
111
112
115
116
118
120
121
122
123
124
125
128
129
130
131
133
134
135
136
137
138
139
140
141
142
144
145
146
147
148
149
150
151
152
153
154
155
156
157
158
159
160
161
162
163
164
165
166
167
168
169
170
171
172
173
174
175
176
177
178
179
180
181
182
183
184
185
Vous retrouverez mes 2 séries faites du toit ICI et ICI.
Un grand merci à Isabelle (CCI de Rouen), à Vincent, au musée maritime, à Guillaume Painchault et aux amis du chais pour leur aide. 🙂









































































































































